Deine Ferienwohnung Guardaval Apt 502

Ferienwohnung

Räume: 2.0
Schlafzimmer: 1.0
Schlafplätze: 4
Wohnfläche: 65 m²
In Etage: Keine Angabe
Aufzug?: Keine Angabe
Registrierungsnr.: 11414
Verpflegungsarten: Selbstverpflegung

Mietpreis:

auf Anfrage

Beschreibung

Beschreibung Innenbereich:

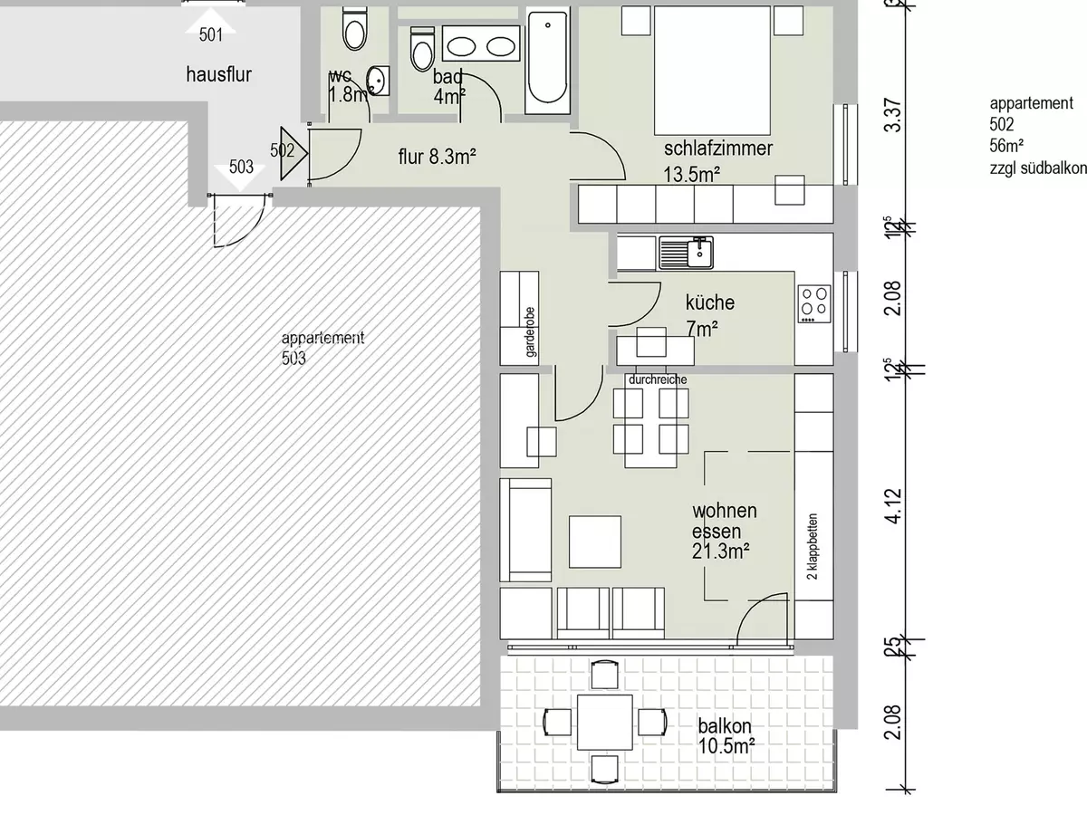
"Guardaval Apt 502", 2-Zimmer-Wohnung 65 m2 im 5. Stock, Südostlage. Komfortabel und rustikal eingerichtet: Wohn-/Esszimmer mit 2 Wandschrankbetten und Kabel-TV (Flachbildschirm), Radio. Ausgang zum Balkon. 1 Zimmer mit 2 Betten. Küche (Backofen, Geschirrspüler, 4 Glaskeramikplatten). Bad/WC, sep. WC. Balkon 7 m2. Schöne Sicht auf die Berge, die Landschaft und die Ortschaft. Zur Verfügung: Internet (WLAN, gratis). Parkplatz. Bitte beachten: Nichtraucher-Unterkunft. 11414

Beschreibung Aussenbereich:

Davos: Appartementhaus "Guardaval (Utoring)". Im Ort, zentrale, ruhige, sonnige Lage am Hang, 1 km vom See, 300 m vom Skigebiet. Zur Mitbenutzung: Hallenbad. Im Hause: Empfang, Aufenthaltsraum mit TV, Wireless LAN, Sauna (extra). Spielzimmer, Fahrstuhl, Skiraum, Zentralheizung, Waschmaschine (zur Mitbenutzung). Brötchenservice und Getränkeservice. Schmale Zufahrt bis zum Haus. Parkplatz (überdacht, beschränkte Anzahl, extra), Gemeinschaftsgarage (extra). Einkaufsgeschäft 300 m, Restaurant 300 m, Bushaltestelle, Bahnstation "Davos Dorf" 400 m, Hallenbad 1 km, Badesee 1 km. Bergeisenbahn, Skisportanlagen, Skipisten, Skischule, Schlittelbahn 1.5 km, Langlaufloipe, Eisfeld 300 m. Bekannte Skigebiete sind gut erreichbar: Parsenn 300 m, Jakobshorn 1.5 km. Das Appartementhaus befindet sich oberhalb der Talstation der Parsennbahn und verfügt über eine herrliche Aussicht. Parkplatz + Garage (Reservierung bei Ankunft).

Ausstattungen

TV in der Wohnung
WLAN / Internet
Kochgelegenheit
Geschirrspueler
Waschmaschine
Wäschetrockner
Terrasse
Balkon
Sauna
Schwimmbad
Ladestation E-Auto
Ladestation E-Bike
Boot
Ofen
Klimaanlage
Mikrowelle
Grill

Geeignet für

Haustiere erlaubt?
Rauchen erlaubt?
Für Allergiker geeignet?
Barrierefrei?
Für Kinder geeignet?

Lage - Ferienwohnung in Davos

Position der Ferienwohnung auf der Landkarte.

Entfernungen

Nachfolgend einige nützliche Entfernungsangaben (in Kilometern).

Keine Angabe
Keine Angabe
Keine Angabe
Keine Angabe

Sonstiges

Meerblick?
Küstennähe?
Parkmöglichkeit?

Preise

Leider wurden keine Preisangaben angegeben. Bitte fragen Sie diese direkt beim Vermieter an.

Zum Anfrageformular

Belegungskalender

Anzeige ab: 01.2026 Datum vor/zurück blättern.

January 2026
MO DI MI DO FR SA SO
0 0 0 1 2 3 4
5 6 7 8 9 10 11
12 13 14 15 16 17 18
19 20 21 22 23 24 25
26 27 28 29 30 31 0
0 0 0 0 0 0 0
February 2026
MO DI MI DO FR SA SO
0 0 0 0 0 0 1
2 3 4 5 6 7 8
9 10 11 12 13 14 15
16 17 18 19 20 21 22
23 24 25 26 27 28 0
0 0 0 0 0 0 0
March 2026
MO DI MI DO FR SA SO
0 0 0 0 0 0 1
2 3 4 5 6 7 8
9 10 11 12 13 14 15
16 17 18 19 20 21 22
23 24 25 26 27 28 29
30 31 0 0 0 0 0
April 2026
MO DI MI DO FR SA SO
0 0 1 2 3 4 5
6 7 8 9 10 11 12
13 14 15 16 17 18 19
20 21 22 23 24 25 26
27 28 29 30 0 0 0
0 0 0 0 0 0 0
May 2026
MO DI MI DO FR SA SO
0 0 0 0 1 2 3
4 5 6 7 8 9 10
11 12 13 14 15 16 17
18 19 20 21 22 23 24
25 26 27 28 29 30 31
0 0 0 0 0 0 0
June 2026
MO DI MI DO FR SA SO
1 2 3 4 5 6 7
8 9 10 11 12 13 14
15 16 17 18 19 20 21
22 23 24 25 26 27 28
29 30 0 0 0 0 0
0 0 0 0 0 0 0

frei/verfügbar

belegt

heute

Mietanfrage

Bei diesem Inserat handelt es sich um eine Ferienunterkunft unseres Partners.
Wir möchten, dass Sie so günstig wie möglich buchen. Daher öffnet sich für die Mietanfrage ein neues Fenster mit dem Inserat und allen Details (Belegungen und Preise). Dadurch haben Sie nur einen Ansprechpartner und können auch dort direkt buchen.

Reisethemen

Strandurlaub (am Meer)
Urlaub am Wasser (Fluss,See)
Wanderurlaub
Sporturlaub
Angelurlaub
Fahrradurlaub
Reiturlaub
Ferien in den Bergen
Urlaub mit dem Hund

Besonders passende Schlagworte

Laut dem Inserenten sind folgende Schlagworte / Suchbegriffe für diese Unterkunft noch besonders zu erwähnen: Prättigau

Mehr zum Thema

Icon: Familienurlaub

Infos, Hinweise und Inspiration rund um Familienurlaub in Davos.
Mehr zum Thema zum Familienurlaub

Icon: Reiturlaub

Alles Wichtige auf einen Blick: Reiturlaub in Davos.
Hinweise & Inspiration zum Reiturlaub

Icon: Wanderurlaub

Rund um Guardaval Apt 502 in Davos: hilfreiche, neutrale Hinweise zu Wanderurlaub.
Themenüberblick öffnen zum Wanderurlaub

Alternative Ferienunterkünfte

Alternativ zu dieser Ferienunterkunft gefällt Ihnen vielleicht eines der folgenden Ferienobjekten.

Platzhalter

Wir nutzen Cookies für die Sicherheit, den korrekten Betrieb unseres Portals und für die Analyse der Benutzerzahlen. Weitere Infos hier: Cookie Info.

Cookies | Impressum | Datenschutz