Deine Ferienwohnung Casa Migiur

Ferienwohnung

Räume: 3.0
Schlafzimmer: 2.0
Schlafplätze: 6
Wohnfläche: 73 m²
In Etage: Keine Angabe
Aufzug?: Keine Angabe
Verpflegungsarten: Selbstverpflegung

Mietpreis:

auf Anfrage

Beschreibung

Beschreibung Innenbereich:

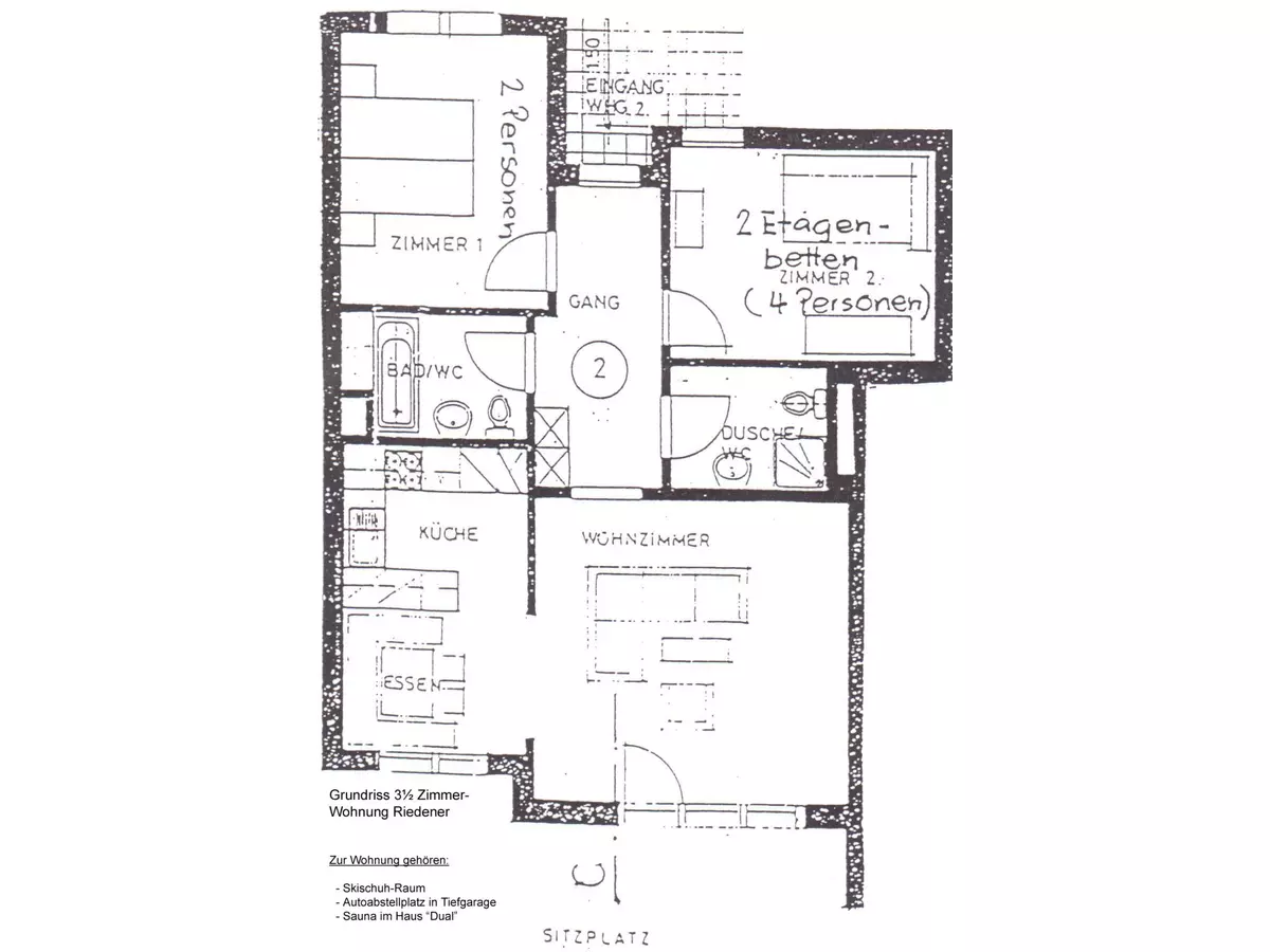
73 m2. Weitere Angaben des Anbieters: Am Dorfrand von Laax, idyllisch ruhig gelegen, befindet sich die 3.5 Zimmerwohnung Casa Migiur. Die helle Parterre-Wohnung bietet auf 73m2 Platz für 6 Gäste. Sie verfügt über einen Garten mit Terasse und Grill, ein Schlafzimmer mit Doppelbett und ein Schlafzimmer mit zwei Etagenbetten. Im Familien-Badezimmer befindet sich eine Badewanne mit Toilette und Waschbecken. Im kleinen Bad ist separat eine Dusche mit Toilette und Waschbecken vorzufinden. Die Küche ist mit einem Glaskeramikherd, Backofen, Spülmaschine und einem Kühlschrank mit Tiefkühlfach, einer Kaffeefiltermaschine, einem Raclette-, Käse- und Chinoise-Fondue-Set ausgestattet. Ein Fernseher, Radio sowie WLAN stehen zur freien Benützung bereit. Bettwäsche, Endreinigung und ein Set Frottéewäsche pro Person sind im Gesamtpreis enthalten, ebenso die Kurtaxen. Hunde sind in dieser Wohnung auf Anfrage erlaubt und werden mit 10 CHF/Nacht vor Ort verrechnet. Ebenso wird die Benützung der Sauna am Ende des Aufenthalts mit 12 CHF/Benützung vor Ort abgerechnet.

Beschreibung Aussenbereich:

Weitere Angaben des Anbieters: Von der Ferienwohnung ins Zentrum vom Dorf sind es nur 5 Minuten zu Fuss, ebenso zur Bushaltestelle "Demvitg". Der kostenlose Ortsbus fährt Sie in nur 5 Minuten Fahrzeit zu den Bergbahnen nach Laax Murschetg oder nach Flims.Im Haus ist ein Skiraum vorzufinden, in welchem Skis, Snowboards wie auch Schuhe getrocknet und aufbewahrt werden können. Über die Tiefgarage ist das Nebenhaus Casa Dual erreichbar, in welchem eine Sauna zur gemeinsamen Benützung zur Verfügung steht. Ein Reservationsbuch ausserhalb der Sauna regelt die Benützung. Auf Anfrage stellen wir Ihnen gerne ein Reisebett für Kleinkinder zur Verfügung. Bushaltestelle "Laax GR, Demvitg" 0.2 km, Bahnstation "Valendas-Sagogn" 2.0 km, Fähre "Mols (See)" 34.6 km.

Ausstattungen

TV in der Wohnung
WLAN / Internet
Kochgelegenheit
Geschirrspueler
Waschmaschine
Wäschetrockner
Terrasse
Balkon
Sauna
Schwimmbad
Ladestation E-Auto
Ladestation E-Bike
Boot
Ofen
Klimaanlage
Mikrowelle
Grill

Geeignet für

Haustiere erlaubt?
Rauchen erlaubt?
Für Allergiker geeignet?
Barrierefrei?
Für Kinder geeignet?

Lage - Ferienwohnung in Laax

Position der Ferienwohnung auf der Landkarte.

Entfernungen

Nachfolgend einige nützliche Entfernungsangaben (in Kilometern).

Keine Angabe
Keine Angabe
Keine Angabe
Keine Angabe

Sonstiges

Meerblick?
Küstennähe?
Parkmöglichkeit?

Preise

Leider wurden keine Preisangaben angegeben. Bitte fragen Sie diese direkt beim Vermieter an.

Zum Anfrageformular

Belegungskalender

Anzeige ab: 12.2025 Datum vor/zurück blättern.

December 2025
MO DI MI DO FR SA SO
1 2 3 4 5 6 7
8 9 10 11 12 13 14
15 16 17 18 19 20 21
22 23 24 25 26 27 28
29 30 31 0 0 0 0
0 0 0 0 0 0 0
January 2026
MO DI MI DO FR SA SO
0 0 0 1 2 3 4
5 6 7 8 9 10 11
12 13 14 15 16 17 18
19 20 21 22 23 24 25
26 27 28 29 30 31 0
0 0 0 0 0 0 0
February 2026
MO DI MI DO FR SA SO
0 0 0 0 0 0 1
2 3 4 5 6 7 8
9 10 11 12 13 14 15
16 17 18 19 20 21 22
23 24 25 26 27 28 0
0 0 0 0 0 0 0
March 2026
MO DI MI DO FR SA SO
0 0 0 0 0 0 1
2 3 4 5 6 7 8
9 10 11 12 13 14 15
16 17 18 19 20 21 22
23 24 25 26 27 28 29
30 31 0 0 0 0 0
April 2026
MO DI MI DO FR SA SO
0 0 1 2 3 4 5
6 7 8 9 10 11 12
13 14 15 16 17 18 19
20 21 22 23 24 25 26
27 28 29 30 0 0 0
0 0 0 0 0 0 0
May 2026
MO DI MI DO FR SA SO
0 0 0 0 1 2 3
4 5 6 7 8 9 10
11 12 13 14 15 16 17
18 19 20 21 22 23 24
25 26 27 28 29 30 31
0 0 0 0 0 0 0

frei/verfügbar

belegt

heute

Mietanfrage

Bei diesem Inserat handelt es sich um eine Ferienunterkunft unseres Partners.
Wir möchten, dass Sie so günstig wie möglich buchen. Daher öffnet sich für die Mietanfrage ein neues Fenster mit dem Inserat und allen Details (Belegungen und Preise). Dadurch haben Sie nur einen Ansprechpartner und können auch dort direkt buchen.

Reisethemen

Strandurlaub (am Meer)
Urlaub am Wasser (Fluss,See)
Wanderurlaub
Sporturlaub
Angelurlaub
Fahrradurlaub
Reiturlaub
Ferien in den Bergen
Urlaub mit dem Hund

Besonders passende Schlagworte

Laut dem Inserenten sind folgende Schlagworte / Suchbegriffe für diese Unterkunft noch besonders zu erwähnen: Surselva

Mehr zum Thema

Icon: Urlaub mit Hund

Casa Migiur und Laax: ein guter Einstieg ins Urlaub mit Hund mit kompakten Hinweisen.
Details zum Thema zum Urlaub mit Hund

Icon: Raucherurlaub

Casa Migiur in Laax: Orientierung und Anregungen zum Raucherurlaub.
Weiterführende Hinweise zum Raucherurlaub

Icon: Wanderurlaub

Orientierung und Anregungen zum Thema Wanderurlaub in Laax.
Infos ansehen zum Wanderurlaub

Alternative Ferienunterkünfte

Alternativ zu dieser Ferienunterkunft gefällt Ihnen vielleicht eines der folgenden Ferienobjekten.

Platzhalter

Wir nutzen Cookies für die Sicherheit, den korrekten Betrieb unseres Portals und für die Analyse der Benutzerzahlen. Weitere Infos hier: Cookie Info.

Cookies | Impressum | Datenschutz