Ferienhaus Krauffel Elsass nahe Obernai – Unterkunft bei Meistratzheim ("kinderfreundlich")

Ferienhaus

Räume: 6.0
Schlafzimmer: 4.0
Schlafplätze: 8
Wohnfläche: 120 m²
In Etage: Keine Angabe
Aufzug?: Nein
Verpflegungsarten: Selbstverpflegung

Mietpreis:

auf Anfrage

Beschreibung

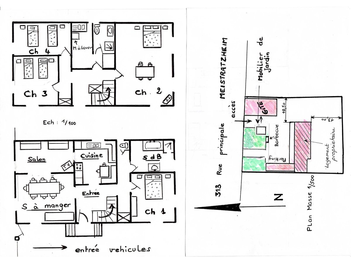
 Typisches  elsaessisches  Fachwerkhaus von 120 Qm auf 2 Ebene im Hof des Eigentümers  Für 6 bis 8 personen.

Das Ferienhaus bietet :

Im Erdgeschoss eine gut ausgestattete Küche,ein Wohnzimmer mit Sofas und TV, ein Esszimmer,ein Schlafzimmier mit 1 Bett 2 Personen,ein Bad mit Wanne,Dusche,Waschbecken,Bidet,ein separates WC.

Im Obergeschoss befinden sich zwei Schlafzimmer mit jedem 2 Betten für 2 Personen , ein Schlafzimmer mit einen bett 2 personen und ein Schlafsofa , ein Waschraum mit Dusche,Waschbecken und WC, ein local mit Waschmaschine und Trockenleine
Die Betten sind fristig bezogen bei ihrer Ankunft.

Vor respekt aller unseren Mietern sind Haustiere nicht erlaubt.

 

Kurtaxe : 0,90 euros pro tag pro person

Sonstiges

Durch seine günstige Lage zwischen Strasbourg und Colmar , den Vogesen und dem Schwarzwald ,ist dieses Ferienhaus der ideale Ausgangspunkt für ihren Urlaub  im Elsass.

Obernai 5 km , Strasbourg 25 km , Colmar 45 km , Odilienberg 20 km , ddas Schloss Haut-Koenigsbourg 35 km ,der Freizeitpark EUROPA-PARK 35km

Die nahe elsaessishe Weinstrasse führt sie durch die Weingegend über 60 km

wo sie typische Dörfer endecken  ;

: Colmar ,Ribeauvillé , Hunawihr , Kaysersberg , Riquewihr und Eguisheim

Ausstattungen

TV in der Wohnung
WLAN / Internet
Kochgelegenheit
Geschirrspueler
Waschmaschine
Wäschetrockner
Terrasse
Balkon
Sauna
Schwimmbad
Ladestation E-Auto
Ladestation E-Bike
Boot
Ofen
Klimaanlage
Mikrowelle
Grill

Geeignet für

Haustiere erlaubt?
Rauchen erlaubt?
Für Allergiker geeignet?
Barrierefrei?
Für Kinder geeignet?

Lage - Ferienhaus in Meistratzheim

Position der Ferienwohnung auf der Landkarte.

Entfernungen

Nachfolgend einige nützliche Entfernungsangaben (in Kilometern).

Keine Angabe
Keine Angabe
1
1

Sonstiges

Meerblick?
Küstennähe?
Parkmöglichkeit?

Preise

Leider wurden keine Preisangaben angegeben. Bitte fragen Sie diese direkt beim Vermieter an.

Zum Anfrageformular

Belegungskalender

Anzeige ab: 12.2025 Datum vor/zurück blättern.

December 2025
MO DI MI DO FR SA SO
1 2 3 4 5 6 7
8 9 10 11 12 13 14
15 16 17 18 19 20 21
22 23 24 25 26 27 28
29 30 31 0 0 0 0
0 0 0 0 0 0 0
January 2026
MO DI MI DO FR SA SO
0 0 0 1 2 3 4
5 6 7 8 9 10 11
12 13 14 15 16 17 18
19 20 21 22 23 24 25
26 27 28 29 30 31 0
0 0 0 0 0 0 0
February 2026
MO DI MI DO FR SA SO
0 0 0 0 0 0 1
2 3 4 5 6 7 8
9 10 11 12 13 14 15
16 17 18 19 20 21 22
23 24 25 26 27 28 0
0 0 0 0 0 0 0
March 2026
MO DI MI DO FR SA SO
0 0 0 0 0 0 1
2 3 4 5 6 7 8
9 10 11 12 13 14 15
16 17 18 19 20 21 22
23 24 25 26 27 28 29
30 31 0 0 0 0 0
April 2026
MO DI MI DO FR SA SO
0 0 1 2 3 4 5
6 7 8 9 10 11 12
13 14 15 16 17 18 19
20 21 22 23 24 25 26
27 28 29 30 0 0 0
0 0 0 0 0 0 0
May 2026
MO DI MI DO FR SA SO
0 0 0 0 1 2 3
4 5 6 7 8 9 10
11 12 13 14 15 16 17
18 19 20 21 22 23 24
25 26 27 28 29 30 31
0 0 0 0 0 0 0

frei/verfügbar

belegt

heute

Mietanfrage

Diese Anfrage ist unverbindlich und wird direkt an den Vermieter weitergeleitet.

Kontakt zum Vermieter

Die Url zur Homepage ist leider nicht sichtbar.

Reisethemen

Strandurlaub (am Meer)
Urlaub am Wasser (Fluss,See)
Wanderurlaub
Sporturlaub
Angelurlaub
Fahrradurlaub
Reiturlaub
Ferien in den Bergen
Urlaub mit dem Hund

Besonders passende Schlagworte

Laut dem Inserenten sind folgende Schlagworte / Suchbegriffe für diese Unterkunft noch besonders zu erwähnen: Strasbourg, Obernai, Odilienberg, Elsass, Haut-Koenigsbourg, Colmar, Riquewihr, Kaysersberg

Mehr zum Thema

Icon: Familienurlaub

Einfach starten: kompakte Hinweise zu Familienurlaub in Meistratzheim.
Weiterführende Hinweise zum Familienurlaub

Icon: Gruppenunterkünfte

Ferienhaus Krauffel Elsass nahe Obernai in Meistratzheim: Orientierung und Anregungen zum Reise mit Gruppe.
Weiterführende Hinweise zu Gruppenunterkünfte

Icon: Wanderurlaub

Ideen und Anhaltspunkte, um Wanderurlaub in Meistratzheim entspannt zu planen.
Jetzt orientieren zum Wanderurlaub

Wir nutzen Cookies für die Sicherheit, den korrekten Betrieb unseres Portals und für die Analyse der Benutzerzahlen. Weitere Infos hier: Cookie Info.

Cookies | Impressum | Datenschutz