Ferienwohnung-2296300 in Mougins (hundefreundlich)

Ferienwohnung

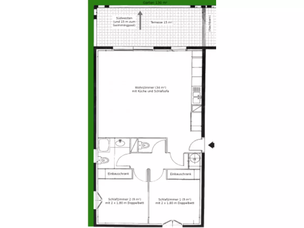
Räume:
Schlafzimmer: 2.0
Schlafplätze: 5
Wohnfläche: - m²
In Etage: Keine Angabe
Aufzug?: Keine Angabe
Registrierungsnr.: Keine vorhanden
Verpflegungsarten: Selbstverpflegung

Mietpreis:

noch unbekannt

Reisedaten:

noch unbekannt

Preisdetails:

Beschreibung

Ferienwohnung für 5 Personen ca. 81 m² in Mougins, Provence-Alpes-Côte d'Azur (Côte d'Azur)
2 Schlafzimmer, 1 Badezimmer, TV, Sat.-TV, Spülmaschine, Hundestrand 4,8 km, Meer 4,8 km, See 15 km, Skiabfahrt 50 km, Strand 4,8 km, gemeinschaftlicher Pool, Waschmaschine, Hund erlaubt

Folgende Ausstattungen/Merkmale sind ebenfalls vorhanden bzw. stellen Detailsinformationen dar:

  • Liegt nahe einer Skipiste
  • Kaffeemaschine
  • Gemeinschafts-Swimmingpool
  • Anzahl Kinderbetten: 0
  • Entfernung zur nächsten Stadt in Metern: 2300
  • Entfernung zur nächsten Skiabfahrt in Metern: 50000
  • Entfernung zum nächsten See in Metern: 15000
  • Garten
  • Fön
  • Heizung
  • Unterkunft liegt im/am Ferienpark
  • Jugendgruppen leider nicht möglich
  • Anzahl erlaubter Haustiere:2
  • Satelliten TV
  • Anzahl Duschen: 1
  • Grundstücksgröße in Quadratmetern: 145
  • WLAN

Sonstiges

Das Objekt gehört zu einer Gruppe von Unterkünften (zum Beispiel ein Haus mit mehreren Wohnungen oder eine Ferienanlage.

Adresse/Lage: 1435 Chemin du Grand Vallon (Les Bastides du Golf) 6250 Mougins Land: FR Region: Provence-Alpes-CotedAzur

Ausstattungen

TV in der Wohnung
WLAN / Internet
Kochgelegenheit
Geschirrspueler
Waschmaschine
Wäschetrockner
Terrasse
Balkon
Sauna
Schwimmbad
Ladestation E-Auto
Ladestation E-Bike
Boot
Ofen
Klimaanlage
Mikrowelle
Grill

Geeignet für

Haustiere erlaubt?
Rauchen erlaubt?
Für Allergiker geeignet?
Barrierefrei?
Für Kinder geeignet?

Lage - Ferienwohnung in Mougins

Position der Ferienwohnung auf der Landkarte.

Entfernungen

Nachfolgend einige nützliche Entfernungsangaben (in Kilometern).

4
4
Keine Angabe
Keine Angabe

Sonstiges

Meerblick?
Küstennähe?
Parkmöglichkeit?

Preise

Leider wurden keine Preisangaben angegeben. Bitte fragen Sie diese direkt beim Vermieter an.

Zum Anfrageformular

Belegungskalender

Anzeige ab: 12.2025 Datum vor/zurück blättern.

December 2025
MO DI MI DO FR SA SO
1 2 3 4 5 6 7
8 9 10 11 12 13 14
15 16 17 18 19 20 21
22 23 24 25 26 27 28
29 30 31 0 0 0 0
0 0 0 0 0 0 0
January 2026
MO DI MI DO FR SA SO
0 0 0 1 2 3 4
5 6 7 8 9 10 11
12 13 14 15 16 17 18
19 20 21 22 23 24 25
26 27 28 29 30 31 0
0 0 0 0 0 0 0
February 2026
MO DI MI DO FR SA SO
0 0 0 0 0 0 1
2 3 4 5 6 7 8
9 10 11 12 13 14 15
16 17 18 19 20 21 22
23 24 25 26 27 28 0
0 0 0 0 0 0 0
March 2026
MO DI MI DO FR SA SO
0 0 0 0 0 0 1
2 3 4 5 6 7 8
9 10 11 12 13 14 15
16 17 18 19 20 21 22
23 24 25 26 27 28 29
30 31 0 0 0 0 0
April 2026
MO DI MI DO FR SA SO
0 0 1 2 3 4 5
6 7 8 9 10 11 12
13 14 15 16 17 18 19
20 21 22 23 24 25 26
27 28 29 30 0 0 0
0 0 0 0 0 0 0
May 2026
MO DI MI DO FR SA SO
0 0 0 0 1 2 3
4 5 6 7 8 9 10
11 12 13 14 15 16 17
18 19 20 21 22 23 24
25 26 27 28 29 30 31
0 0 0 0 0 0 0

frei/verfügbar

belegt

heute

Mietanfrage

Bei diesem Inserat handelt es sich um eine Ferienunterkunft unseres Partners.
Wir möchten, dass Sie so günstig wie möglich buchen. Daher öffnet sich für die Mietanfrage ein neues Fenster mit dem Inserat und allen Details (Belegungen und Preise). Dadurch haben Sie nur einen Ansprechpartner und können auch dort direkt buchen.

Reisethemen

Strandurlaub (am Meer)
Urlaub am Wasser (Fluss,See)
Wanderurlaub
Sporturlaub
Angelurlaub
Fahrradurlaub
Reiturlaub
Ferien in den Bergen
Urlaub mit dem Hund

Mehr zum Thema

Icon: Urlaub mit Hund

Kurz & bündig: Wissenswertes zu Urlaub mit Hund in Mougins.
Thema vertiefen zum Urlaub mit Hund

Icon: Wanderurlaub

Praxisnahe Tipps und neutrale Hinweise zu Wanderurlaub in Mougins.
Themenüberblick öffnen zum Wanderurlaub

Alternative Ferienunterkünfte

Alternativ zu dieser Ferienunterkunft gefällt Ihnen vielleicht eines der folgenden Ferienobjekten.

Platzhalter

Wir nutzen Cookies für die Sicherheit, den korrekten Betrieb unseres Portals und für die Analyse der Benutzerzahlen. Weitere Infos hier: Cookie Info.

Cookies | Impressum | Datenschutz