J. v. Eichendorff – Deine Ferienwohnung

Ferienwohnung

Räume: 4.0
Schlafzimmer: 1.0
Schlafplätze: 3
Wohnfläche: 40 m²
In Etage: Keine Angabe
Aufzug?: Keine Angabe
Verpflegungsarten: Selbstverpflegung

Mietpreis:

auf Anfrage

Beschreibung

Beschreibung Innenbereich:

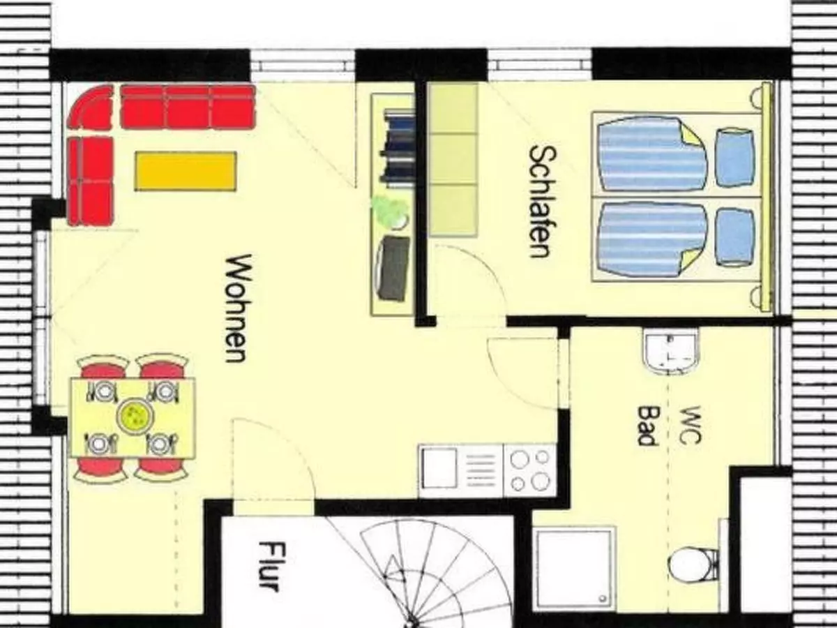
Willkommen in unserem Haus "J. v. Eichendorff". Unser Haus befindet sich in zentraler, aber ruhiger Lage im westlichen Teil des Ostseebades Prerow. Prerow, umgeben vom Nationalpark "Vorpommersche Boddenlandschaft", liegt im Nordwesten der Halbinsel Darß und kann sich rühmen, (nach ARTE Wahl) einen der schönsten 20 Strände der Welt zu besitzen. Begrenzt wird der Ort durch den Darßwald im Westen, der nur 400 m von unserem Haus entfernt beginnt, und den Prerowstrom im Osten. Der Prerowstrom, ursprünglich eine Verbindung zur Ostsee, wurde 1872 nach einer schweren Sturmflut verschlossen. Prerow ist ein altes Fischer- und Seefahrerdorf, und die Prerower Seemannskirche ist die älteste Kirche auf Fischland-Darß-Zingst. 1880 begann die Geschichte des Seebades Prerow. Die Einwohner sind stolz auf ihre Tradition und Prerow hat trotz vieler neuer Ferienunterkünfte bis heute seinen ländlichen, weiten Charakter bewahrt. Einmalig ist der Darß-Wald mit seinem wild-romantischen Weststand. Unsere Ferienwohnung bietet auf ca. 40 m² Wohnfläche reichlich Platz für in der Regel 2 Personen, aber in der FeWo ist auch für eine 3. Person noch genügend Raum vorhanden. Zur Ferienwohnung gehören 1 Schlafzimmer, ein großes Wohnzimmer, eine integrierte Küchenzeile und Bad/WC. Die Ferienwohnung ist komfortabel und stilvoll eingerichtet und verfügt im gesamten Wohnbereich über eine Fußbodenheizung. Neben der Couchsitzgruppe gibt es im Wohnzimmer einen zusätzlichen Esstisch. Sat/Farb-TV mit Flachbildschirm, Stereo-Anlage (Radio, CD-Player) und Internet-Zugang gehören ebenfalls zur Ausstattung. Die kleine Küche ist komplett mit Plattenherd, Kühlschrank, Kaffeemaschine, Toaster, Eierkocher ausgestattet. Geschirr ist natürlich ebenfalls vorhanden. Gern können Sie den gemeinsamen Garten nutzen. Zur Gartenausstattung gehören u.a. Tische und Stühle und ein großer steinerner Grill. Profitieren Sie auch von den Wellness- und Entspannungsangeboten, die wir in unserem Haus offerieren. Sie können verschiedene fernöstliche Gesundheitsmassagen ausprobieren oder nehmen Sie doch am Morgen-Taiji und Qigong, den alten chinesischen Gesundheitsübungen, teil. Übrigens: Wir setzen in unserem Hause auch zunehmend auf regenerative Energieerzeugung. Ein erheblicher Teil des Warmwassers und der Heizungsenergie wird durch eine Solarthermieanlage bereitgestellt. Einen großen Zeil unseres Stroms erzeugen wir durch Photovoltaik. Prerow liegt mitten im Nationalpark "Vorpommersche Boddenlandschaft". Das Seebad Zingst und das Künstlerdorf Ahrenshoop sind nur wenige Kilometer entfernt. Für Ausflüge lohnt sich auch ein Abstecher in die Bernsteinstadt Ribnitz-Damgarten oder in den Vogelpark Marlow. Sehenswert sind die Hansestädte Rostock und Stralsund. Basisinformationen - Erlaubte Haustiere: keins - Art d. Wohnung: Dachgeschoss - Art d. Gebäudes: Einfamilienhaus - Etage, auf der sich das Objekt befindet: OG1 - Gesamtanzahl d. Stockwerke im Gebäude über EG: 1 - Grundstücksfläche: 1000 m² - Baujahr: 2012 - letzte umfassende Renovierung: 2015 - freistehend - keine Einsicht von der Straße - Nichtraucherunterkunft - Schlafzimmeranzahl: 1 - Badezimmeranzahl: 1 Top Merkmale - WLAN - Heizung: überall - Fußbodenheizung: überall - Garten: zur gemeinschaftlichen Nutzung - komplett eingefriedet (mit Mauer, Zaun oder Hecke) - Private PKW-Stellplätze insgesamt für diese Unterkunft: 1 - ㄴ davon Garagenstellplätze: keinen - ㄴ davon Carport-Stellplätze: keinen - ㄴ davon private Außen­stellplätze: 1 Schlafen im Wohnbereich - Zustellbett Schlafzimmer 1 - Doppelbett (1,80m Breite) - Schlafzimmer abdunkelbar Badezimmer Badezimmer 1 - Dusche - Waschbecken - Toilette - Tageslicht sanitäre Einrichtungen in der Nähe - Toilette Kochen/Wohnen - Kaffeemaschine: Kaffeemaschine - Kühl-/Gefrierschrank: Gefrierfach, Kühlschrank - Herd: Zwei-Platten-Herd - Toaster - Mikrowelle - Wasserkocher - Anzahl Esstische: 1 - Gesamtzahl Sitzplätze: 3 - Anzahl Wohnzimmer: 1 - Wohnzimmer abdunkelbar Entertainment - Fernseher: TV, Sat.-TV - Musikanlage - CD-Player Für Kinder - Kinderstuhl Außenbereich - Grill: Grill Umgebung - nächstgelegene Ortsmitte: 900 m - Lebensmittelhandel: 1,0 km - Cafés/Restaurants: 200 m - Bahnhof: 15,0 km - Flughafen: 65,0 km - nächste Haltestelle ÖPNV: 900 m - Strand: 1,0 km - Hundestrand: 1,0 km - Sandstrand: 1,0 km - Meer: 1,0 km - Reitmöglichkeit: 300 m Besonderheiten - Inmitten der Natur gelegen

Beschreibung Aussenbereich:

Art d. Gebäudes: Einfamilienhaus.Grundstücksfläche: 1000m². Baujahr: 2012.

Ausstattungen

TV in der Wohnung
WLAN / Internet
Kochgelegenheit
Geschirrspueler
Waschmaschine
Wäschetrockner
Terrasse
Balkon
Sauna
Schwimmbad
Ladestation E-Auto
Ladestation E-Bike
Boot
Ofen
Klimaanlage
Mikrowelle
Grill

Geeignet für

Haustiere erlaubt?
Rauchen erlaubt?
Für Allergiker geeignet?
Barrierefrei?
Für Kinder geeignet?

Lage - Ferienwohnung in Prerow

Position der Ferienwohnung auf der Landkarte.

Entfernungen

Nachfolgend einige nützliche Entfernungsangaben (in Kilometern).

Keine Angabe
Keine Angabe
Keine Angabe
Keine Angabe

Sonstiges

Meerblick?
Küstennähe?
Parkmöglichkeit?

Preise

Leider wurden keine Preisangaben angegeben. Bitte fragen Sie diese direkt beim Vermieter an.

Zum Anfrageformular

Belegungskalender

Anzeige ab: 12.2025 Datum vor/zurück blättern.

December 2025
MO DI MI DO FR SA SO
1 2 3 4 5 6 7
8 9 10 11 12 13 14
15 16 17 18 19 20 21
22 23 24 25 26 27 28
29 30 31 0 0 0 0
0 0 0 0 0 0 0
January 2026
MO DI MI DO FR SA SO
0 0 0 1 2 3 4
5 6 7 8 9 10 11
12 13 14 15 16 17 18
19 20 21 22 23 24 25
26 27 28 29 30 31 0
0 0 0 0 0 0 0
February 2026
MO DI MI DO FR SA SO
0 0 0 0 0 0 1
2 3 4 5 6 7 8
9 10 11 12 13 14 15
16 17 18 19 20 21 22
23 24 25 26 27 28 0
0 0 0 0 0 0 0
March 2026
MO DI MI DO FR SA SO
0 0 0 0 0 0 1
2 3 4 5 6 7 8
9 10 11 12 13 14 15
16 17 18 19 20 21 22
23 24 25 26 27 28 29
30 31 0 0 0 0 0
April 2026
MO DI MI DO FR SA SO
0 0 1 2 3 4 5
6 7 8 9 10 11 12
13 14 15 16 17 18 19
20 21 22 23 24 25 26
27 28 29 30 0 0 0
0 0 0 0 0 0 0
May 2026
MO DI MI DO FR SA SO
0 0 0 0 1 2 3
4 5 6 7 8 9 10
11 12 13 14 15 16 17
18 19 20 21 22 23 24
25 26 27 28 29 30 31
0 0 0 0 0 0 0

frei/verfügbar

belegt

heute

Mietanfrage

Bei diesem Inserat handelt es sich um eine Ferienunterkunft unseres Partners.
Wir möchten, dass Sie so günstig wie möglich buchen. Daher öffnet sich für die Mietanfrage ein neues Fenster mit dem Inserat und allen Details (Belegungen und Preise). Dadurch haben Sie nur einen Ansprechpartner und können auch dort direkt buchen.

Reisethemen

Strandurlaub (am Meer)
Urlaub am Wasser (Fluss,See)
Wanderurlaub
Sporturlaub
Angelurlaub
Fahrradurlaub
Reiturlaub
Ferien in den Bergen
Urlaub mit dem Hund

Besonders passende Schlagworte

Laut dem Inserenten sind folgende Schlagworte / Suchbegriffe für diese Unterkunft noch besonders zu erwähnen: Ostsee

Mehr zum Thema

Icon: Reiturlaub

Infos, Hinweise und Inspiration rund um Reiturlaub in Prerow.
Mehr zum Thema zum Reiturlaub

Alternative Ferienunterkünfte

Alternativ zu dieser Ferienunterkunft gefällt Ihnen vielleicht eines der folgenden Ferienobjekten.

Platzhalter

Wir nutzen Cookies für die Sicherheit, den korrekten Betrieb unseres Portals und für die Analyse der Benutzerzahlen. Weitere Infos hier: Cookie Info.

Cookies | Impressum | Datenschutz