Deine Ferienwohnung elkes-feriendomizil-sh

Ferienwohnung

Räume: 2.0
Schlafzimmer: 1.0
Schlafplätze: 4
Wohnfläche: 65 m²
In Etage: 0
Aufzug?: Nein
Verpflegungsarten: Selbstverpflegung

Mietpreis:

ab 83.00 € für 1 Tag

Beschreibung

Du suchst das Besondere in der Metropolregion Hamburg? Hier hast du es gefunden:

​Moin und herzlich Willkommen!

Mitten im schönen Herzogtum Lauenburg, unweit der Autobahn A24 (Anschlussstelle Talkau ca. 4 km), befindet sich das kleine Dorf Schretstaken. Hier bietet dir unsere exklusive Ferienwohnung "elkes-feriendomizil-sh" ein ruhiges und gemütliches Quartier mit großem Garten und Außenpool.

Verkehrsgünstig gelegen, im Städtedreieck Hamburg (40 km), Lübeck (55 km) und Schwerin (65 km), dem süd-östlichen Schleswig-Holstein, ist es der perfekte Ausgangspunkt für Städtetouren, Tagesausflügen zu Nord- und Ostsee, der Mecklenburger Seenplatte oder in die Lüneburger Heide.

Auch in unmittelbarer Nähe findest du tolle Ausflugsziele, Wälder und Seen mit ausgedehnten Rad-, Wander- und Reitwegen.

Sollte dir das alles mal zu anstrengend oder aufregend sein, verbringst du den Tag entspannt auf der Terrasse, im Garten oder dem Pool. Und wenn das Wetter mal wieder so typisch "nordisch" um's Eck kommt, bleibt dir immer noch der gechillte Tag auf der Couch. Beim Fernsehen (Sat-TV, Netflix, Prime Video, YouTube, etc.) oder einem guten Buch kann dir auch das schlimmste "Schmuddelwetter" gepflegt den Buckel runterrutschen. 

Egal ob Faulenzer, Wanderer, Radler, Kanute, Chopperfreund oder Kurvenfresser - in unserer Gegend ist für jeden was dabei. Ideal für den Urlaub mit der ganzen Familie (bis max. 4 Personen), Urlaub mit Hund oder Katze, als autobahnnahe Übernachtungsmöglichkeit für Transitreisende und Biker sowie als Monteurzimmer für Handwerker auf Montage in der Umgebung.

Haustiere sind bei uns herzlich willkommen und wohnen natürlich kostenlos! Und für den unbeschwerten Urlaub mit Hund, kannst du nach Absprache und gegen eine kleine Gebühr unseren Gassi-Service oder Hunde-Sitting in Anspruch nehmen.

Schleswig-Holstein, das Land zwischen den Meeren - hier kannst du Deinen Urlaub im echten Norden unbeschwert genießen.

Sonstiges

elkes-feriendomizil-sh im Überblick:

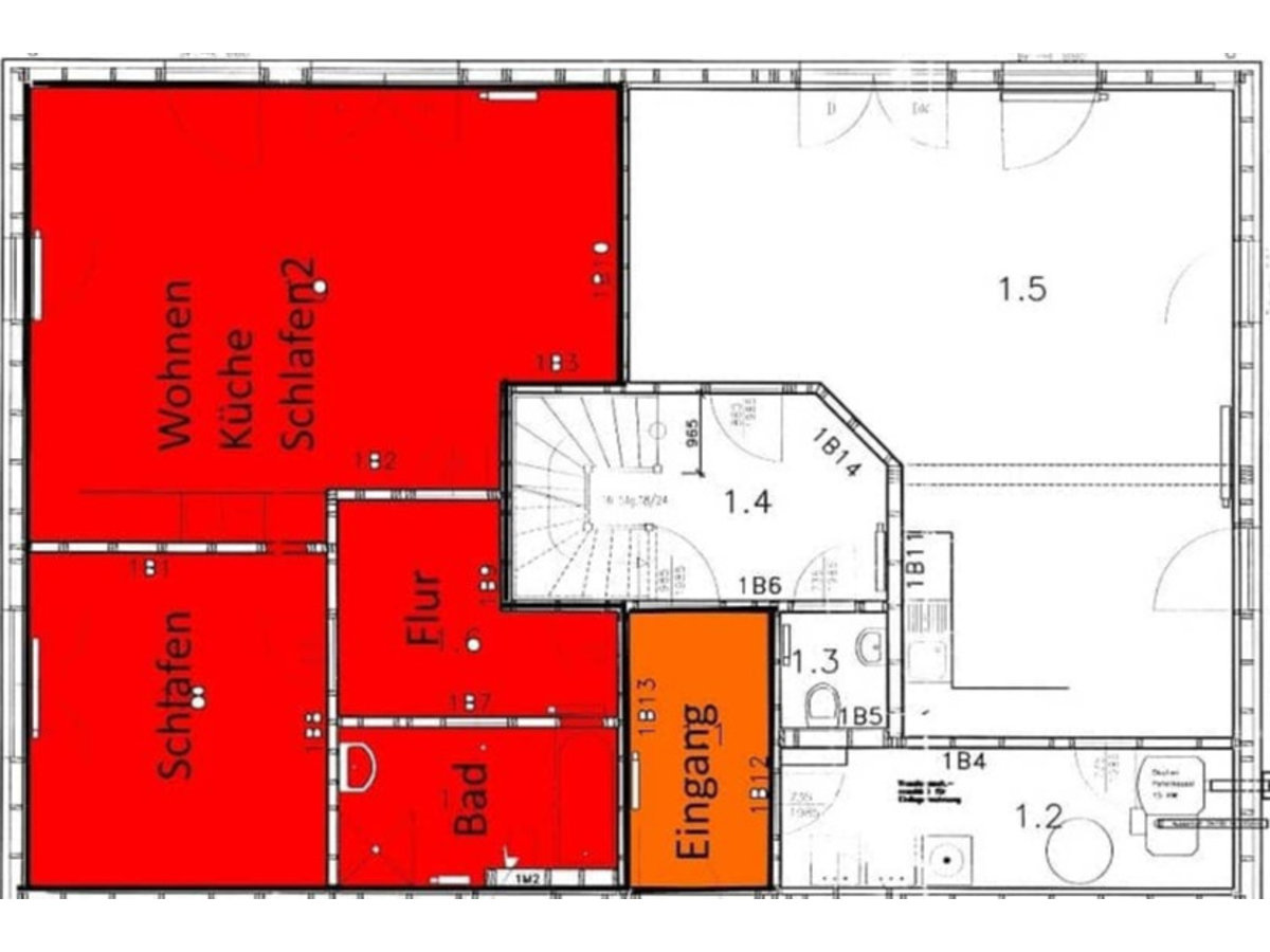
Du betrittst deine ca. 65 qm große Ferienwohnung im Erdgeschoss durch den gemeinsam mit den Eigentümern genutzen Eingang und Vorflur in deinen eigenen Flur.

Zur linken Hand befindet sich das Bad mit WC, Waschtisch, Wanne und ebenerdiger Dusche. Das Bad hat ein blickdichtes Nordfenster und ist mit ca. 7 qm ausreichend bemessen.

Geradezu kommst du in dein Schlafzimmer mit ca. 16,5 qm Grundfläche und 2flügeligem Ostfenster, durch das du dich je nach Geschmack von der aufgehenden Sonne wecken lassen kannst oder aber die Verdunklungsrollos nutzt, um den neuen Tag richtig ausgeruht zu beginnen.

Wenn du Dich im Flur nach rechts wendest, betrittst du durch eine Glastür den kombinierten Wohn- und Küchenraum mit 2 zusätzlichen Schlafplätzen, die bei Nichtgebrauch im Handumdrehen zur Couch umfunktioniert werden können. Dieser Raum misst ca. 35 qm und verfügt über ein Ost- und ein Südfenster sowie eine 2flügelige Glastür, über die du auf die Sonnenterrasse gelangst.

Ausstattungen

TV in der Wohnung
WLAN / Internet
Kochgelegenheit
Geschirrspueler
Waschmaschine
Wäschetrockner
Terrasse
Balkon
Sauna
Schwimmbad
Ladestation E-Auto
Ladestation E-Bike
Boot
Ofen
Klimaanlage
Mikrowelle
Grill

Geeignet für

Haustiere erlaubt?
Rauchen erlaubt?
Für Allergiker geeignet?
Barrierefrei?
Für Kinder geeignet?

Lage - Ferienwohnung in Schretstaken

Position der Ferienwohnung auf der Landkarte.

Entfernungen

Nachfolgend einige nützliche Entfernungsangaben (in Kilometern).

0
60
12
2

Sonstiges

Meerblick?
Küstennähe?
Parkmöglichkeit?

Preise

25.00 € Pauschale einmalig zuzüglich zum Mietpreis.


Nein. Der Vermieter führt die Endreinigung durch.

Nachfolgend ist die Endreinigung im "Mietpreis gesamt" mit enthalten. Die Preise gelten in Euro.

Belegungskalender

Anzeige ab: 01.2026 Datum vor/zurück blättern.

January 2026
MO DI MI DO FR SA SO
0 0 0 1 2 3 4
5 6 7 8 9 10 11
12 13 14 15 16 17 18
19 20 21 22 23 24 25
26 27 28 29 30 31 0
0 0 0 0 0 0 0
February 2026
MO DI MI DO FR SA SO
0 0 0 0 0 0 1
2 3 4 5 6 7 8
9 10 11 12 13 14 15
16 17 18 19 20 21 22
23 24 25 26 27 28 0
0 0 0 0 0 0 0
March 2026
MO DI MI DO FR SA SO
0 0 0 0 0 0 1
2 3 4 5 6 7 8
9 10 11 12 13 14 15
16 17 18 19 20 21 22
23 24 25 26 27 28 29
30 31 0 0 0 0 0
April 2026
MO DI MI DO FR SA SO
0 0 1 2 3 4 5
6 7 8 9 10 11 12
13 14 15 16 17 18 19
20 21 22 23 24 25 26
27 28 29 30 0 0 0
0 0 0 0 0 0 0
May 2026
MO DI MI DO FR SA SO
0 0 0 0 1 2 3
4 5 6 7 8 9 10
11 12 13 14 15 16 17
18 19 20 21 22 23 24
25 26 27 28 29 30 31
0 0 0 0 0 0 0
June 2026
MO DI MI DO FR SA SO
1 2 3 4 5 6 7
8 9 10 11 12 13 14
15 16 17 18 19 20 21
22 23 24 25 26 27 28
29 30 0 0 0 0 0
0 0 0 0 0 0 0

frei/verfügbar

belegt

heute

Mietanfrage

Diese Anfrage ist unverbindlich und wird direkt an den Vermieter weitergeleitet.

Kontakt zum Vermieter

Die Url zur Homepage ist leider nicht sichtbar.

Reisethemen

Strandurlaub (am Meer)
Urlaub am Wasser (Fluss,See)
Wanderurlaub
Sporturlaub
Angelurlaub
Fahrradurlaub
Reiturlaub
Ferien in den Bergen
Urlaub mit dem Hund

Besonders passende Schlagworte

Laut dem Inserenten sind folgende Schlagworte / Suchbegriffe für diese Unterkunft noch besonders zu erwähnen: Urlaub mit Hund, Familienurlaub, Ferienwohnung mit Pool, Erholungsurlaub, Monteurzimmer, Ferienwohnung Herzogtum Lauenburg

Mehr zum Thema

Icon: Urlaub mit Hund

Alles Wichtige auf einen Blick: Urlaub mit Hund in Schretstaken.
Hinweise & Inspiration zum Urlaub mit Hund

Icon: Familienurlaub

Praxisnahe Tipps und neutrale Hinweise zu Familienurlaub in Schretstaken.
Themenüberblick öffnen zum Familienurlaub

Icon: Angelurlaub

Ideen und Anhaltspunkte, um Angelurlaub in Schretstaken entspannt zu planen.
Jetzt orientieren zum Angelurlaub

Icon: Wanderurlaub

elkes-feriendomizil-sh – verortet in Schretstaken. Die Themenübersicht zu Wanderurlaub gibt zusätzlichen Kontext.
Tipps entdecken zum Wanderurlaub

Wir nutzen Cookies für die Sicherheit, den korrekten Betrieb unseres Portals und für die Analyse der Benutzerzahlen. Weitere Infos hier: Cookie Info.

Cookies | Impressum | Datenschutz