Dein Ferienhaus in idyllischer Lage im Süden Korsikas

Ferienhaus

Räume: 2.0
Schlafzimmer: 0.0
Schlafplätze: 3
Wohnfläche: 40 m²
In Etage: Keine Angabe
Aufzug?: Keine Angabe
Registrierungsnr.: FR2023COR
Verpflegungsarten: Selbstverpflegung

Mietpreis:

auf Anfrage

Beschreibung

Beschreibung Innenbereich:

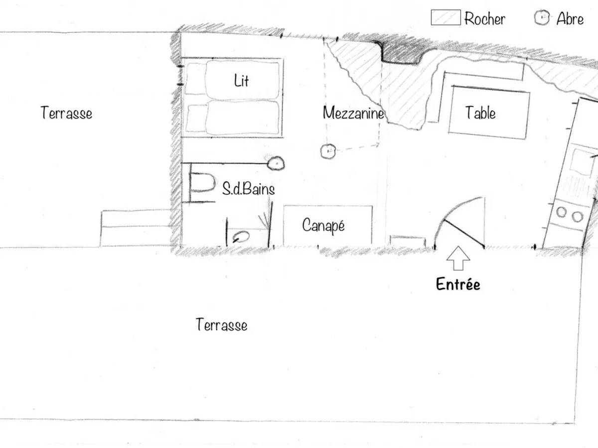
Casa Lysandra - Ferienhaus mit idyllischer, ruhiger Lage im Süden Korsikas Vom Ferienhaus aus sind sie in nur 5 Minuten mit dem Auto am Strand. Trotz der ruhigen und idyllischen Lage sind Einkaufsmöglichkeiten, Freizeitaktivitäten wie Tauchen, Radfahren... und Restaurants in nur 10 Minuten mit dem Auto zu erreichen. Das Haus bietet Platz für bis zu 4 Personen. Es erwartet Sie ein liebevoll im rustikalem Stil eingerichtetes Haus mit Klimaanlage. Im Schlafbereich stehen 1 Doppelbett (1,60m breit), 1 Mezzanineschlafplatz und ein Schlafsofa zur Verfügung. Bettwäsche wird von uns zur Verfügung gestellt. Das Bad bietet Dusche, Waschbecken, Föhn und WC. Die Handtücher werden gestellt. Küche und Wohnbereich haben durch einen in das Haus integrierten Felsen ihren ganz besonderen Charme. Waschmaschine, Kühlschrank mit Gefrierfach, Siebträgerkaffemaschine, Toaster, 2 Kochfelder, Geschirr und Besteck für 4 Personen gehören zur Küchenausstattung. Des weiteren können Sie Radio/CD-Player, Fernseher und W-Lan nutzen. Eine große Terrasse mit Tisch und 4 Stühlen sowie 2 Liegestühlen bietet platz zum erholen, entspannen und draußen essen. Genießen Sie die Ruhe der korsischen Macchia selbst im Hochsommer. Hier können Sie den Grillen zuhören, den Milan beobachten und abends tausende Sterne zählen. Für Familien ideal. Haustiere sind erlaubt. In unmittelbarer Nähe einer der Schönsten Strände der Region. Umgeben von typisch korsischen Dörfern finden Sie Restaurants, Einkaufs- und Freizeitmöglichkeiten in wenigen Autominuten. Basisinformationen - Erlaubte Haustiere: 1 - Unterkunftstyp: Ferienhaus - Art d. Gebäudes: Einfamilienhaus - Grundstücksfläche: 1000 m² - letzte umfassende Renovierung: 2017 - freistehend - keine Einsicht von der Straße - Anbieter wohnt auf dem Grundstück - Nichtraucherunterkunft - Schlafzimmeranzahl: Studio (kein separates Schlafzimmer) - Badezimmeranzahl: 1 Top Merkmale - WLAN - Klimaanlage: überall - Heizung: überall - Terrasse - Garten: zur alleinigen Nutzung - komplett eingefriedet (mit Mauer, Zaun oder Hecke) - Private PKW-Stellplätze insgesamt für diese Unterkunft: 1 - ㄴ davon Garagenstellplätze: keinen - ㄴ davon Carport-Stellplätze: keinen - ㄴ davon private Außen­stellplätze: 1 Schlafen im Wohnbereich - Doppelbett (von 1,51 m bis 1,79 m Breite) - Einzelbett - Schlafsofa 1 Person Badezimmer Badezimmer 1 - Dusche - Waschbecken - Toilette - Föhn Kochen/Wohnen - Kaffeemaschine: Kaffeemaschine - Kühl-/Gefrierschrank: Gefrierfach, Kühlschrank - Herd: Zwei-Platten-Herd - Toaster - Geschirrtücher - Anzahl Esstische: 1 - Gesamtzahl Sitzplätze: 4 Entertainment - Fernseher: Sat.-TV - Radio - CD-Player Hauswirtschaft - Waschmaschine: zur alleinigen Nutzung im Objekt - Ventilator: 1 Außenbereich - Grill: Grill Umgebung - nächstgelegene Ortsmitte: 10,0 km - Lebensmittelhandel: 10,0 km - Bars/Clubs/Ausgehen: 10,0 km - Cafés/Restaurants: 10,0 km - Bahnhof: 50,0 km - Flughafen: 50,0 km - Strand: 5,0 km - Sandstrand: 5,0 km - Wasser (Meer, See etc.): 5,0 km - Meer: 5,0 km - Wassersport: 10,0 km - Anlegeplatz: 10,0 km - Fahrrad-Verleih: 10,0 km - Wanderweg: 5,0 km - Reitmöglichkeit: 10,0 km Besonderheiten - Inmitten der Natur gelegen

Beschreibung Aussenbereich:

Art d. Gebäudes: Einfamilienhaus.Grundstücksfläche: 1000m². Anbieter wohnt auf dem Grundstück.

Ausstattungen

TV in der Wohnung
WLAN / Internet
Kochgelegenheit
Geschirrspueler
Waschmaschine
Wäschetrockner
Terrasse
Balkon
Sauna
Schwimmbad
Ladestation E-Auto
Ladestation E-Bike
Boot
Ofen
Klimaanlage
Mikrowelle
Grill

Geeignet für

Haustiere erlaubt?
Rauchen erlaubt?
Für Allergiker geeignet?
Barrierefrei?
Für Kinder geeignet?

Lage - Ferienhaus in Serra-di-Ferro

Position der Ferienwohnung auf der Landkarte.

Entfernungen

Nachfolgend einige nützliche Entfernungsangaben (in Kilometern).

Keine Angabe
Keine Angabe
Keine Angabe
Keine Angabe

Sonstiges

Meerblick?
Küstennähe?
Parkmöglichkeit?

Preise

Leider wurden keine Preisangaben angegeben. Bitte fragen Sie diese direkt beim Vermieter an.

Zum Anfrageformular

Belegungskalender

Anzeige ab: 12.2025 Datum vor/zurück blättern.

December 2025
MO DI MI DO FR SA SO
1 2 3 4 5 6 7
8 9 10 11 12 13 14
15 16 17 18 19 20 21
22 23 24 25 26 27 28
29 30 31 0 0 0 0
0 0 0 0 0 0 0
January 2026
MO DI MI DO FR SA SO
0 0 0 1 2 3 4
5 6 7 8 9 10 11
12 13 14 15 16 17 18
19 20 21 22 23 24 25
26 27 28 29 30 31 0
0 0 0 0 0 0 0
February 2026
MO DI MI DO FR SA SO
0 0 0 0 0 0 1
2 3 4 5 6 7 8
9 10 11 12 13 14 15
16 17 18 19 20 21 22
23 24 25 26 27 28 0
0 0 0 0 0 0 0
March 2026
MO DI MI DO FR SA SO
0 0 0 0 0 0 1
2 3 4 5 6 7 8
9 10 11 12 13 14 15
16 17 18 19 20 21 22
23 24 25 26 27 28 29
30 31 0 0 0 0 0
April 2026
MO DI MI DO FR SA SO
0 0 1 2 3 4 5
6 7 8 9 10 11 12
13 14 15 16 17 18 19
20 21 22 23 24 25 26
27 28 29 30 0 0 0
0 0 0 0 0 0 0
May 2026
MO DI MI DO FR SA SO
0 0 0 0 1 2 3
4 5 6 7 8 9 10
11 12 13 14 15 16 17
18 19 20 21 22 23 24
25 26 27 28 29 30 31
0 0 0 0 0 0 0

frei/verfügbar

belegt

heute

Mietanfrage

Bei diesem Inserat handelt es sich um eine Ferienunterkunft unseres Partners.
Wir möchten, dass Sie so günstig wie möglich buchen. Daher öffnet sich für die Mietanfrage ein neues Fenster mit dem Inserat und allen Details (Belegungen und Preise). Dadurch haben Sie nur einen Ansprechpartner und können auch dort direkt buchen.

Reisethemen

Strandurlaub (am Meer)
Urlaub am Wasser (Fluss,See)
Wanderurlaub
Sporturlaub
Angelurlaub
Fahrradurlaub
Reiturlaub
Ferien in den Bergen
Urlaub mit dem Hund

Besonders passende Schlagworte

Laut dem Inserenten sind folgende Schlagworte / Suchbegriffe für diese Unterkunft noch besonders zu erwähnen: Korsika

Mehr zum Thema

Icon: Urlaub mit Hund

Kurz & bündig: Wissenswertes zu Urlaub mit Hund in Serra-di-Ferro.
Thema vertiefen zum Urlaub mit Hund

Icon: Reiturlaub

Ideen und Anhaltspunkte, um Reiturlaub in Serra-di-Ferro entspannt zu planen.
Jetzt orientieren zum Reiturlaub

Alternative Ferienunterkünfte

Alternativ zu dieser Ferienunterkunft gefällt Ihnen vielleicht eines der folgenden Ferienobjekten.

Platzhalter

Wir nutzen Cookies für die Sicherheit, den korrekten Betrieb unseres Portals und für die Analyse der Benutzerzahlen. Weitere Infos hier: Cookie Info.

Cookies | Impressum | Datenschutz